THE WESLEY

Gallery
Introducing The Wesley, Aspen Homes, Inc.’s latest design, crafted from the feedback and ideas of our clients. This stunning model home blends modern sophistication with classic charm, perfectly embodying our signature “Modern Heritage” style—where timeless elegance meets contemporary flair.
Nestled in a serene neighborhood, The Wesley welcomes you with its inviting facade. Inside, the expansive open-concept living space is flooded with natural light, thanks to strategically placed clerestory windows and soaring cathedral ceilings. This is a home that celebrates both style and function.
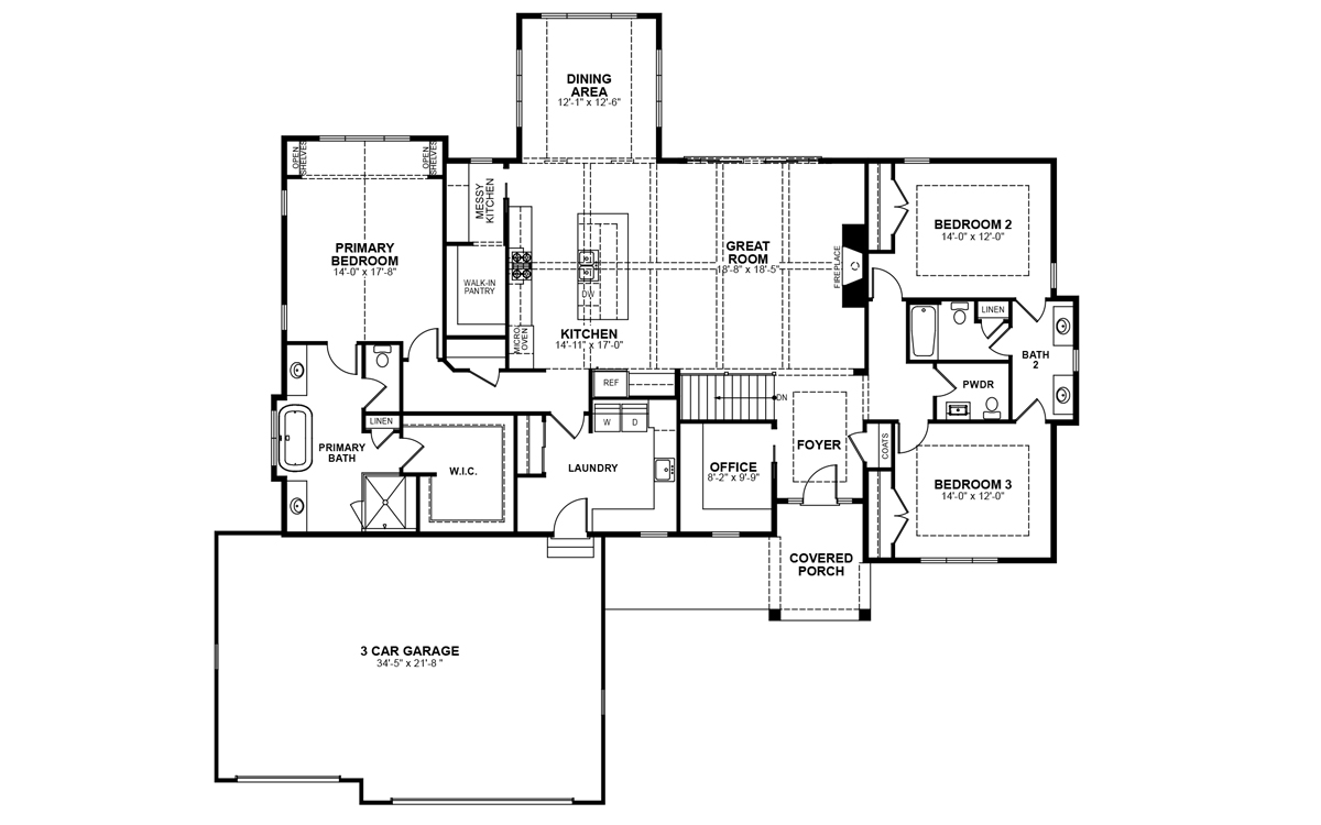
Adjacent to the foyer, a stylish home office provides a peaceful sanctuary for work or study, offering ample space and inspiring views. The gourmet kitchen is a chef’s dream, featuring custom cabinetry in organic tones, quartzite countertops, and a spacious “messy kitchen” to keep everything organized, even during busy cooking sessions.
The cozy eating nook blends indoor-outdoor living, creating an ideal space for morning coffee or evening gatherings. Step outside onto the patio for larger events, or enjoy an intimate dinner with friends.
Retreat to the luxurious primary suite, where an arched reading nook invites relaxation. The spa-inspired ensuite bathroom offers a serene escape. Two additional bedrooms provide ample space for family or guests, ensuring everyone feels at home.
The Wesley is more than just a house—it’s a home designed to evolve with your lifestyle. With thoughtful design and expertly crafted features, this home offers both timeless beauty and modern convenience. Visit today and experience the art of living well in Aspen Homes’ signature “Modern Heritage” style.
- Multiple garage options are available
- Gourmet kitchen with custom cabinetry, large working island with rear storage, unique messy kitchen prep area, and walk-in pantry
- Dramatic beamed cathedral ceiling in the great room and kitchen
- Strategically placed clerestory windows flood the living space with natural light
- A charming arched reading nook in the primary suite, offers a touch of timeless elegance
- The “messy kitchen” pantry adds unique character and practicality to your daily routines
- Large walk-in closets in all bedrooms, tray ceiling in Primary bedroom
- Unique details like shiplap rear entry, den/office with obscure glass pocket door
Aspen’s in-house Design Center simplifies the selections process, while our standard upgraded choices makes creating your own look fun and exciting!!
Details
Rooms
Great Room
Kitchen
Dining Area
Laundry
Office
3 Bedrooms
2 Baths
(multiple garage options available)
Sq Footage:
2,610 SQ.FT
Garage:
3 Car












































































